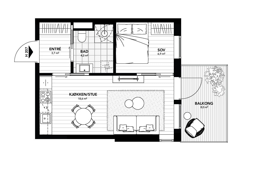
H407
Effektiv og moderne 2-roms leilighet med smart planløsning som utnytter arealet godt. Åpen stue- og kjøkkenløsning gir en luftig romfølelse, mens soverommet er adskilt og rolig plassert. En ideell leilighet for førstegangskjøpere eller deg som ønsker en lettstelt leilighet med god standard. Egen balkong på ca. 8 kvm.
Etasje
4
Antall rom
2
BRA-i m²
36
BRA-e m²
2,5
Sum BRA m²
38,5
Uteplass m²
8
Stipulerte felleskost. pr. mnd
2 027
Pris
3 450 000
Omkostninger
22 340
Totalpris
3 472 340
