H503
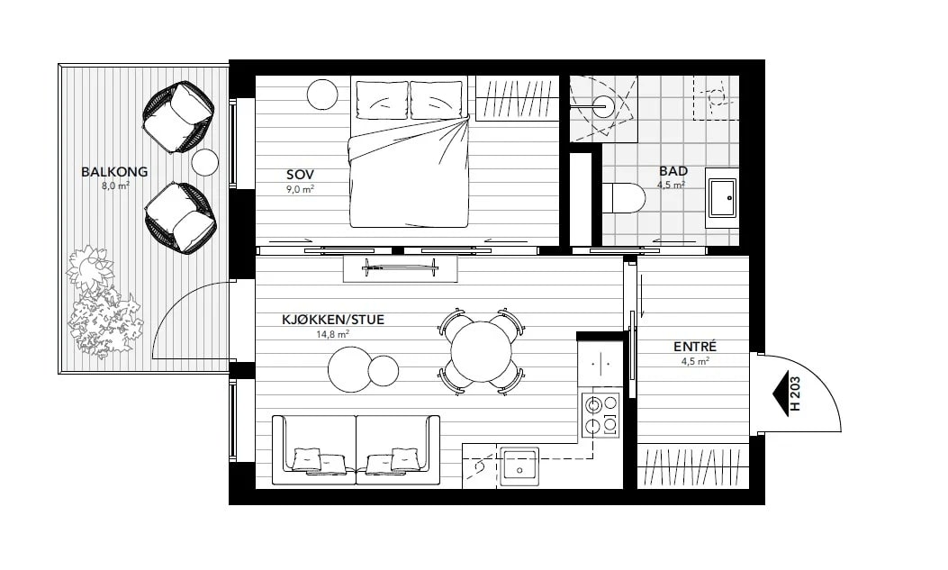
Effektiv og moderne 2-roms leilighet med smart planløsning som utnytter arealet godt. Åpen stue- og kjøkkenløsning gir en luftig romfølelse, mens soverommet er adskilt og rolig plassert. En ideell leilighet for førstegangskjøpere eller deg som ønsker en lettstelt leilighet med god standard. Leilighetens balkong vender mot vest, slik at man har veldig gode solforhold. Det er også åpent ut mot parkområdet i vest, slik at utsikten også er ypperlig.
Etasje
5
Antall rom
2
BRA-i m²
36
BRA-e m²
2,5
Sum BRA m²
38,5
Uteplass m²
Stipulerte felleskost. pr. mnd
2 027
Pris
3 650 000
Omkostninger
22 340
Totalpris
3 672 340
