Dokumenter
Boligvelger
Rekkehus
Galleri
Nyheter
Husbankfinansiering
Meld interesse
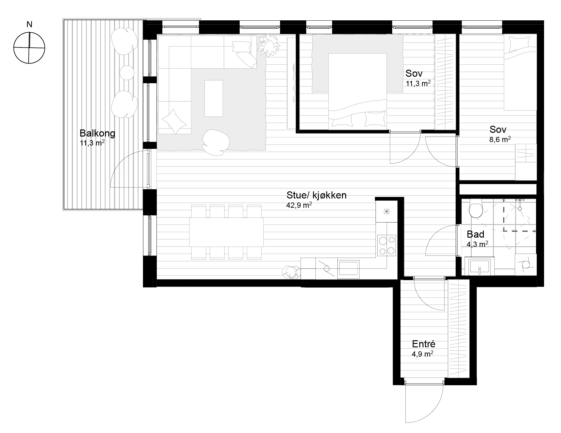
H504
Meld interesse
Se prospekt
Gi bud
Etasje
5
Antall rom
3
BRA-i m²
77
BRA-e m²
5
Sum BRA m²
82
Uteplass m²
10
Stipulerte felleskost. pr. mnd
3 995
Pris
6 750 000
Omkostninger
31 710
Totalpris
6 781 710
Meld interesse
Fyll inn navn
Fyll inn etternavn
Fyll inn telefonnummer
Fyll inn e-post
Jeg ønsker å bli kontaktet i samtykke med denne
personvernerklæringen
Vitec Next Id
Jeg ønsker også å motta Fredensborg Bolig nyhetsbrev
Send
Powered by Plyo
Tilbake til Bygg H - estimert innflytting 4. kvartal 2027